Nature City
Nature city by MVD Buildwell Pvt. ltd.
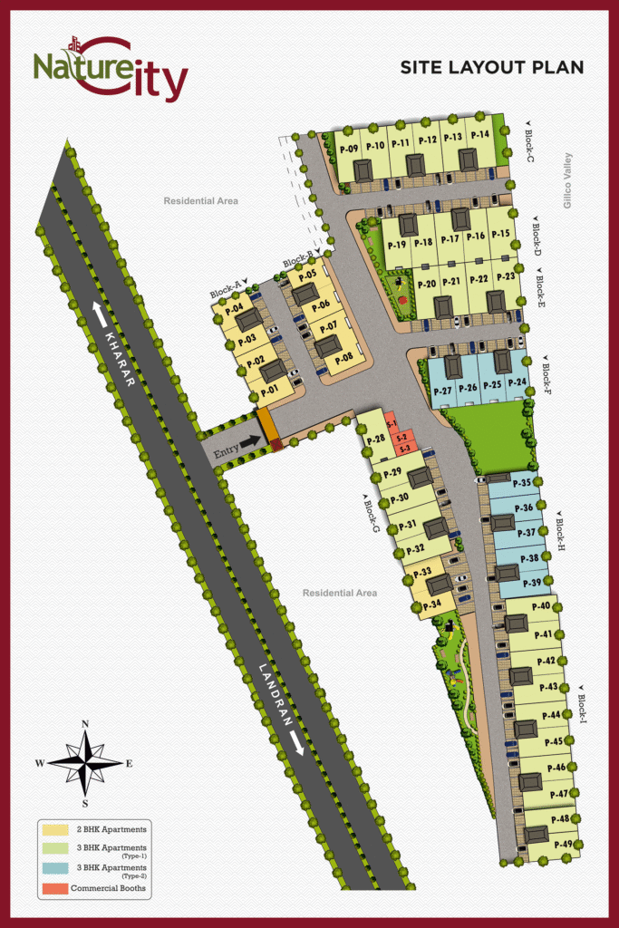
Nature City—Ready-to-Move Low-Rise Apartments in Sector-115, Kharar, Greater Mohali
If you’re looking for a perfect blend of comfort, connectivity, and community living in the Tricity region, Nature City in Sector-115, Kharar, is the place to be. Situated on a prime highway-facing location in Greater Mohali, Nature City is a thoughtfully designed residential project offering 148 low-rise, ready-to-move apartments that promise both luxury and affordability.
With all modern amenities already operational, it offers a lifestyle that’s ready for you from day one—no waiting, no uncertainty. Whether you’re planning to move in with your family or investing for future returns, it delivers unmatched value in one of Mohali’s fastest-developing areas.
Location Advantage – Sector-115, Kharar
One of the key highlights of Nature City is its strategic location. Situated on the main Kharar-Landran highway, the project enjoys excellent connectivity to Mohali, Chandigarh, Panchkula, and other parts of Tricity. Daily commuting is smooth, and essential destinations like schools, hospitals, malls, and markets are just minutes away.
It is ideally positioned for professionals working in IT hubs like Quark City, education zones, and the upcoming Aerocity and International Airport Road corridor, making it an ideal choice for both homebuyers and investors.
Low-Rise Living—A Healthier, Peaceful Lifestyle
Unlike crowded high-rise apartments, it offers low-rise living with G+2 independent floors, giving you more privacy, better natural light, and improved air circulation. Each unit is carefully planned to offer maximum space utilization and comfort.
Low-rise apartments in Kharar are gaining popularity due to their serene environment, fewer residents per tower, and family-friendly atmosphere. Nature City captures these benefits perfectly while maintaining affordability.
Ready-to-Move Apartments—No Waiting, No Delays
What sets Nature City apart is that it is a ready-to-move residential project. All apartments are complete and possession-ready, so you can move in immediately or start earning rental income from day one. With increasing delays in under-construction projects across the region, ready-to-move homes like it offer peace of mind and security.
Buyers often prefer ready homes to avoid construction risks, and Nature City’s delivery-first model ensures transparency and trust.
Amenities That Enhance Your Daily Life
Nature City goes beyond basic housing by offering a complete lifestyle with top-tier amenities that are already functional:
- ✅ Three-tier security system for complete peace of mind 
- ✅ CCTV surveillance covering all key areas 
- ✅ Sewage Treatment Plant (STP) for eco-friendly waste management 
- ✅ 24×7 water supply and electricity backup 
- ✅ Beautifully landscaped parks and green areas 
- ✅ Dedicated kids play zones and walking paths 
- ✅ Wide internal roads and proper street lighting 
- ✅ Low-density design for peaceful living 
These features not only improve your daily comfort but also increase the long-term value of your property.
Ideal for Families, Professionals & Investors
Nature City is perfect for a wide range of buyers. Whether you’re a newly married couple looking to start your journey, a growing family that needs more space, or a senior citizen wanting peaceful surroundings, it has something for everyone.
For investors, the project’s location, infrastructure readiness, and rental potential make it a strong candidate for steady returns and long-term growth. Demand for rental flats in Greater Mohali and Kharar is increasing rapidly due to the area’s development pace, and ready units like those in Nature City are in high demand.
Why Choose Nature City?
✔️ Prime location on highway in Sector-115
✔️ Ready-to-move low-rise flats with immediate possession
✔️ All amenities operational—live from day one
✔️ Peaceful yet well-connected lifestyle
✔️ Ideal for families, working professionals & NRIs
✔️ Affordable pricing with long-term value
In a market full of promises, Nature City stands out for its delivery, design, and dependability.
Book Your Dream Home Today
If you’re searching for a ready-to-move residential project in Greater Mohali, look no further than Nature City in Sector-115, Kharar. Experience the joy of owning a home that’s move-in ready and built to enhance every moment of your life.
📞 Contact us now to schedule a site visit or learn about current offers.
Your dream home at Nature City is waiting!
Layout plan
2BHK and 3BHK
2bhk Layout
The images will be uploaded soon
3 BHK Layout plan
The Layouts will be uploaded soon
 
															 
				Relax mind and thoughts
 
				Beautiful surroundings
 
				introduction with nature
 
															 
											